Quick Info

Objektreferenz: 1043/2544/15

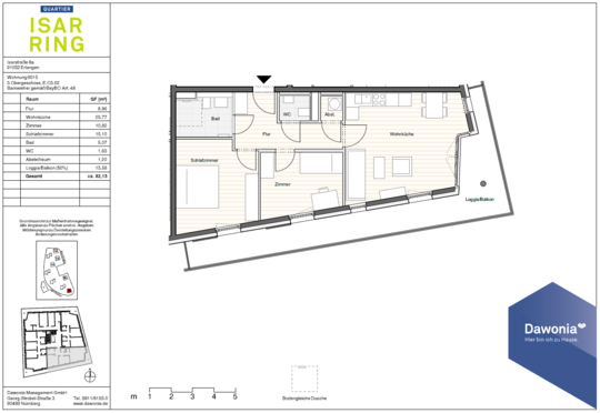
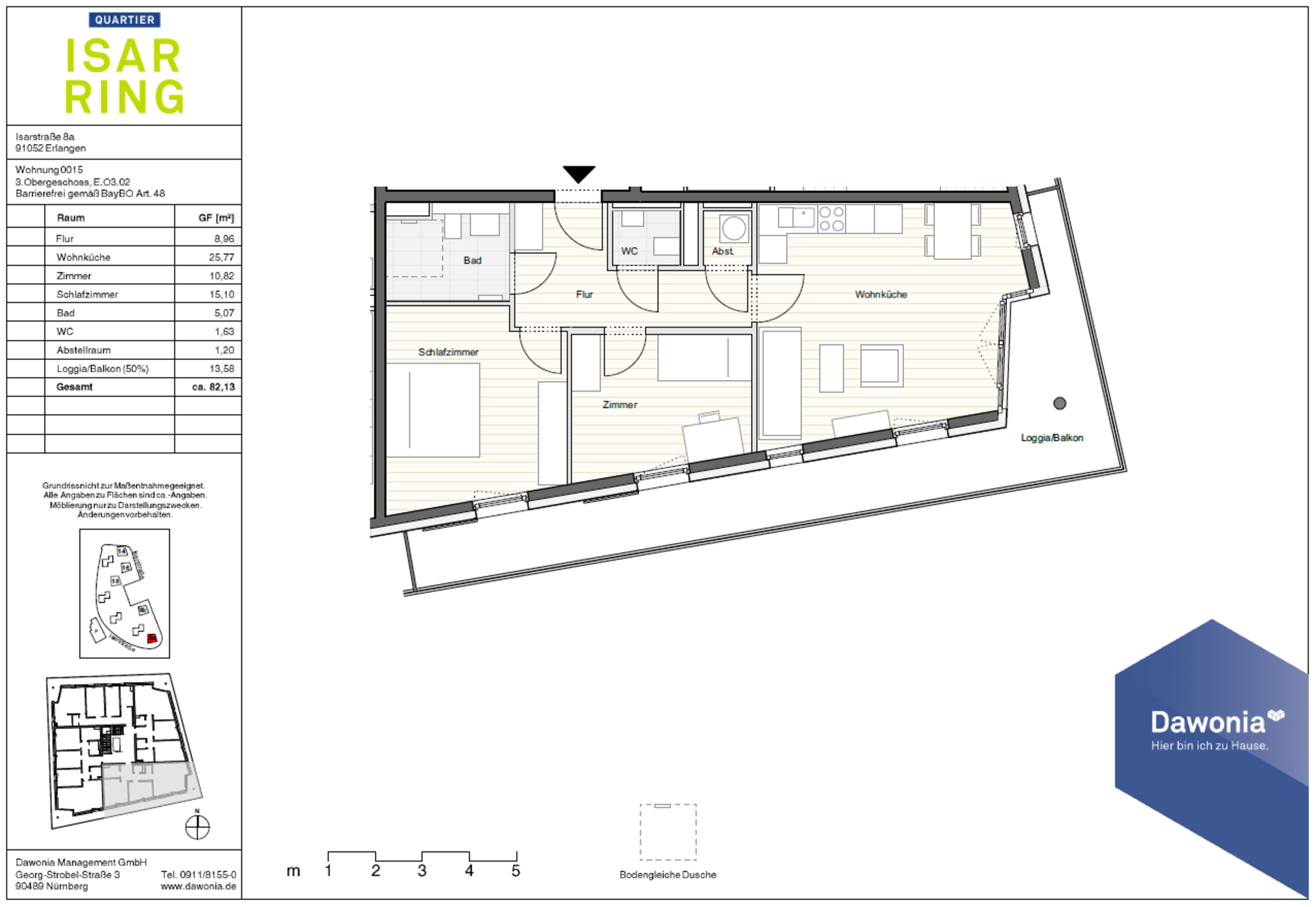
Die moderne 3-Zimmer-Wohnung befindet sich im 3. Obergeschoss eines 2022 erbauten Mehrfamilienhauses in einer gepflegten Wohnanlage.

Auf Wunsch kann ein Stellplatz im Parkhaus neben dem Haus für zusätzlich 50 € mtl. angemietet werden.

  • Wohnfläche ca. : 82 m2
  • Kaltmiete: 1.126,00 €
  • Betriebskosten: 110,00 €
  • Heizkosten: 164,00 €
  • Gesamtmiete: 1.400,00 €
  • Kaution: 3.378,00 €
  • Baujahr: 2022
  • Geschoss: 3
  • Wohnungstyp: Etage
  • Bezugstermin: 01.01.2026
  • Zustand: Gepflegt
  • Energieausweistyp: Bedarf
  • Heizungsart: Zentral
  • Energiekennwert: 62kWh/(m²*a)
  • Energieträger: Fernwärme
  • Effizienzklasse: B
  • Badezimmer: 1
  • Schlafzimmer: 2
  • Aufzug
  • Fahrradraum
  • Kamin
  • Abstellraum
  • Anzahl Balkon / Terrasse: 1 / 0
  • Einbauküche
  • Waschmaschinenanschluss
  • Keller
  • Gegensprechanlage: VIDEO
  • Dusche
  • Gaestewc
  • Fußboden: FERTIGPARKETT
  • Stellplatzart: Parkhaus
  • Parkplätze: 1
  • Objekt-Nr: 1043/2544/15